▶ Y型过滤器(焊接)
![]() | ![]() |
![]() | ![]() |
▶ Y型过滤器(铸件)
![]() | ![]() |
![]() | ![]() |
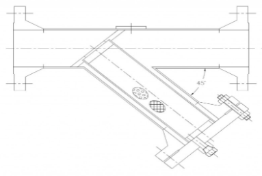
精密设备防护盾:
常用于含油污水的处理,45°倾斜滤网+底部排污的设计,可将压损低至0.05MPa,5μm级精度高效清除铁锈、油污。
依据ASME B31.3 / ASME B16.5 / ASME B16.47等设计规范,
设计尺寸涵盖管口尺寸2’’ 4” 6” 8” 10” 12” 14” 16” 18” 20” 24’’
法兰等级150#—2500#等多种规格。
部分产品可采用内部FBE喷涂或堆焊等工艺提升耐磨性及抗腐蚀性,为仪表阀门提供极致保护。
紧凑空间专家:低温碳钢/双相不锈钢/超级双相钢材质打造,适用于甲板密集区,RO膜前预处理首选。








